Hotel na Savskoj cesti
Savska cesta predstavlja jednu od najfrekventnijih gradskih prometnica u Zagrebu. To je prostor unutar grada koji se postepeno transformira u poslovni centar specifičan po gradnji visokih poslovnih tornjeva koji se na tom potezu grade od sredine 20. stoljeća. Parcela na kojoj se planira gradnja novog hotela se nalazi na području između željezničke pruge uzdignute na nasipu i Savske ceste, te u blizini križanja sa Slavonskom avenijom i ikoničkim Vjesnikovim neboderom.
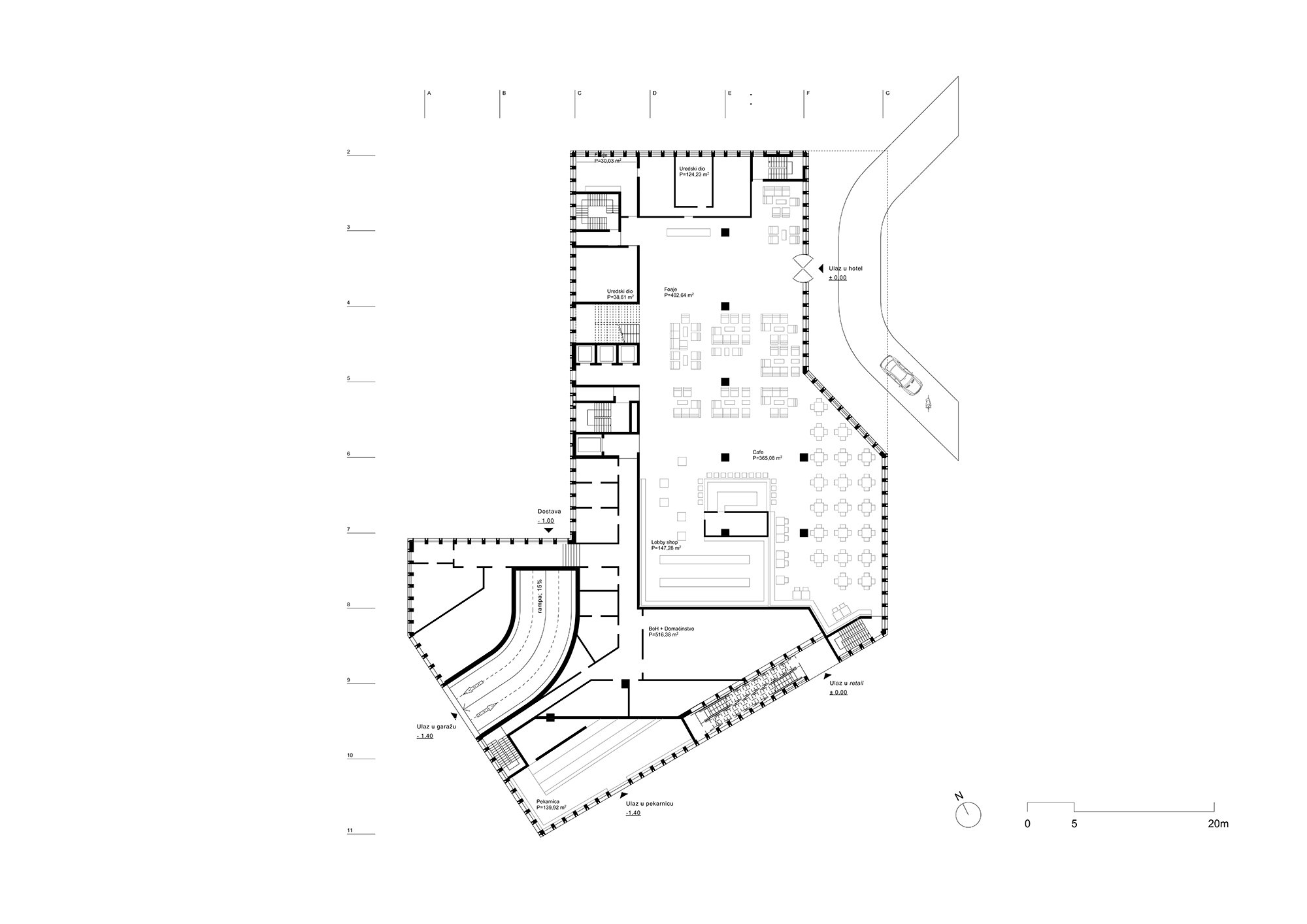
Hotel je koncipiran kao toranj s hotelskim sobama i bazom s javnim sadržajima kako bi se omogućila optimalna dispozicija hotelskih soba iznad razine pruge I kako bi se osigurale primjerene vizure na grad. Zbog blizine Vjesnikovog nebodera hotelski toranj je oblikovan kao njegov blizanac, iste su visine i sličnog formata; zajedno formiraju međuprostor koji se doživljava kao okvir prema vizurama Gornjeg grada.
Zgrada hotela želi doprijeti gradotvornosti Savske ceste, te se zbog toga na nižim etažama formiraju javni sadržaji koji komuniciraju s gradom, parkiranje je riješeno u podzemnim etažama.
Kako bi se još više potencirao odnos prema javnome, prema gradu, na ulaznom prostoru se formira velika konzola koja stvara natkriveni prostor poput gradske lođe.
| Datum: | 2019 |
| Lokacija: | Zagreb |
| Bruto površina: | 29,800 m² |
| Investitor: | KAMELIA–PROMET d.o.o. |
| Autor: | Željko Golubić |
| Vizualizacije: | Viktor Vdović, PRIKAZE |